МАСТЕРСКИЕ
С 2020 года в КГА ПОУ "УКТУ" функционируют Центры Проведения Демонстрационного Экзамена, которые включает 2 мастерские по компетенциям "Поварское дело" и "Кондитерское дело", оснащенные современным, высоко технологичным, профессиональным, пищевым оборудованием.
В 2024 году открыта единственная в Приморском крае мастерская "Хлебопечение".
- Студенты колледжа обучаются на лабораторно-практических занятиях и учебной практике в условиях реального производства.
- Организована деятельность студентов в форме практической подготовки.
- На площадках работают три сертифицированных главных эксперта.
- Площадки используются для реализации проектов: "Аттестат+профессия", "Страна мастеров", "Карьерное српровождение", "Содействие занятости".
- На площадках ежегодно проводится муниципальный конкурс "Юный кулинар".
ВИДЕООБЗОР МАСТЕРСКИХ
Мастерская по обслуживанию предприятий общественного питания
Торжественное открытие состоялось 16 сентября 2025 года.




Приобретно профессиональное оборудование:
Кофемашина полуавтоматическая Vatten VK650/2800/M

Льдогенератор Cooleq ZBC-18, электрокипятильник HURAKAN HKN-PCY 8
Весы электронные M-ER 326(A)F

блендер погружной Libhot BK-200
Соковыжималка шнековая CASO Slow Juicer SJW300

РОS-терминал АТОЛ Jazz 16 Lite с денежным ящиком, сканером на подставке
Мастерская «Хлебопечение» - единственная в Приморском крае.
Мастерская создана в 2024 году при поддержке:
Министерство Российской Федерации по развитию Дальнего Востока и Арктики
Министерство профессионального образования и занятости населения Приморского края Минвостокразвития
Перечень основного оборудования:
Спиральный тестомес 2хскоростной VIATTO VA-SM5GR

Весы настольные электронные MAS MSC-05D
предел взвешивания- до 10 кг

Подовая печь С пароувлажнением хлебопекарная электрическая Abat ХПЭ-750/500.
11 нерж. (1365x1075x430мм, 6,4кВт, 380В

Расстоечный шкаф Gastromix BP-13

Машина для раскатки теста и пиццы DMA500/1

Печь конвекционная на подставке с пароувлажнением
Abat КЭП-6 800x770x509, напр380В, мощность 6,5кВт

Плита индукционная
INDOKOR Температура, С min: +60 max:+240

Планетарный миксер Kitchen Aid
Объем чаши 4,83 литра

Ледогенератор Cooleq ZBC-18

Шкаф шоковой заморозки ColdlineW10

Стол-холодильник с рабочей поверхностью
2 двери. темп: -2...+8 'С, Габ размеры: 1200х600х850 мм. полок 4

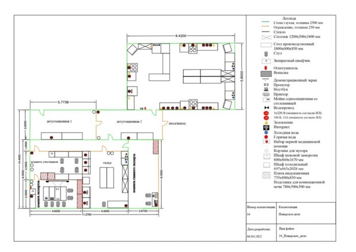
План застройки площадки по компетенции "Поварское дело"









Инструкция по охране труда и технике безопасности
для проведения Демонстрационного экзамена
по компетенции № 34 «Поварское дело»
ИНФРАСТРУКТУРНЫЙ ЛИСТ КОД 1.1-1.5
План застройки площадки по компетенции "Кондитерское дело"







ОЦЕНОЧНЫЕ МАТЕРИАЛЫ ДЛЯ ДЕМОНСТРАЦИОННОГО ЭКЗАМЕНА
ПО КОМПЕТЕНЦИИ 32 "КОНДИТЕРСКОЕ ДЕЛО"
ИНФРАСТРУКТУРНЫЙ ЛИСТ КОД 1.1
ДЕМОНСТРАЦИОННЫЙ ЭКЗАМЕН
Демонстрационный экзамен – это форма государственной итоговой аттестации/промежуточной аттестации обучающихся по программам среднего профессионального образования образовательных организации высшего и среднего профессионального образования, которая предусматривает:
*моделирование реальных производственных условий для демонстрации выпускниками профессиональных умении и навыков;
*независимую экспертную оценку выполнения задании демонстрационного экзамена, в том числе экспертами из числа представителей предприятии;
*определение уровня знаний, умений и навыков выпускников в соответствии с международными требованиями.
Демонстрационный экзамен проводится с целью определения у студентов и выпускников уровня знаний, умений, навыков, позволяющих вести профессиональную деятельность в определенной сфере и (или) выполнять работу по конкретным профессиям или специальностям в соответствии со стандартами.
Включение формата демонстрационного экзамена в процедуру государственной итоговой аттестации обучающихся профессиональных образовательных организаций – это модель независимой оценки качества подготовки кадров, содействующая решению нескольких задач системы профессионального образования и рынка труда без проведения дополнительных процедур.
Выпускникам
Выпускники, прошедшие аттестационные испытания в формате демонстрационного экзамена получают возможность:
*одновременно с подтверждением уровня освоения образовательной программы в соответствии с федеральными государственными образовательными стандартами подтвердить свою квалификацию в соответствии с требованиями стандартов без прохождения дополнительных аттестационных испытаний;
*подтвердить свою квалификацию по отдельным профессиональным модулям, востребованным предприятиями-работодателями и получить предложение о трудоустройстве на этапе выпуска из образовательной организации;
*одновременно с получением диплома о среднем профессиональном образовании получить документ, подтверждающий уровень профессиональных компетенций в соответствии со стандартами – Паспорт компетенций.
Все выпускники, прошедшие демонстрационный экзамен и получившие Паспорт компетенций вносятся в базу данных молодых профессионалов, доступ к которому предоставляется всем ведущим предприятиям-работодателям, признавшим формат демонстрационного экзамена, для осуществления поиска и подбора персонала.
Образовательным организациям
Для образовательных организаций проведение аттестационных испытаний в формате демонстрационного экзамена – это:
*возможность объективно оценить содержание и качество образовательных программ;
объективно оценить материально-техническую базу;
*оценить уровень квалификации преподавательского состава;
*возможность определения точек роста и дальнейшего развития в соответствии с актуальными требованиями международного рынка труда.
Предприятиям
Предприятия получают доступ к единой базе участников движения "Профессионалы" и выпускников, прошедших процедуру демонстрационного экзамена, и могут осуществить подбор лучших молодых специалистов по востребованным компетенциям, оценив на практике их профессиональные умения и навыки, а также определить образовательные организации для сотрудничества в области подготовки и развития персонала.